
More pictures
Project for investment by the sea

| Back to results |
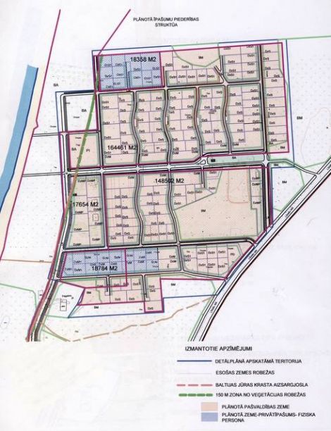
Land size: 30,23 ha / 302 300 m²
Price: Teirautis/ Inquire/ Спросить
302 300 sqm land for investment with detailed plan and architectural desicions. The land is located 2 km from Liepoja, it's only 100 m from the sea. In the project are 463 buildings with 1100 inhabitants. Building size is from 1200 to 2000 m².
Contacts: AdministracijaTelephone: +370 615 45577
Email: info@latava.lt


